A cor branca transmite contemporaneidade e luminosidade. A madeira e a cor castanha requinte e conforto. A cor amarela uma atitude de irreverência.

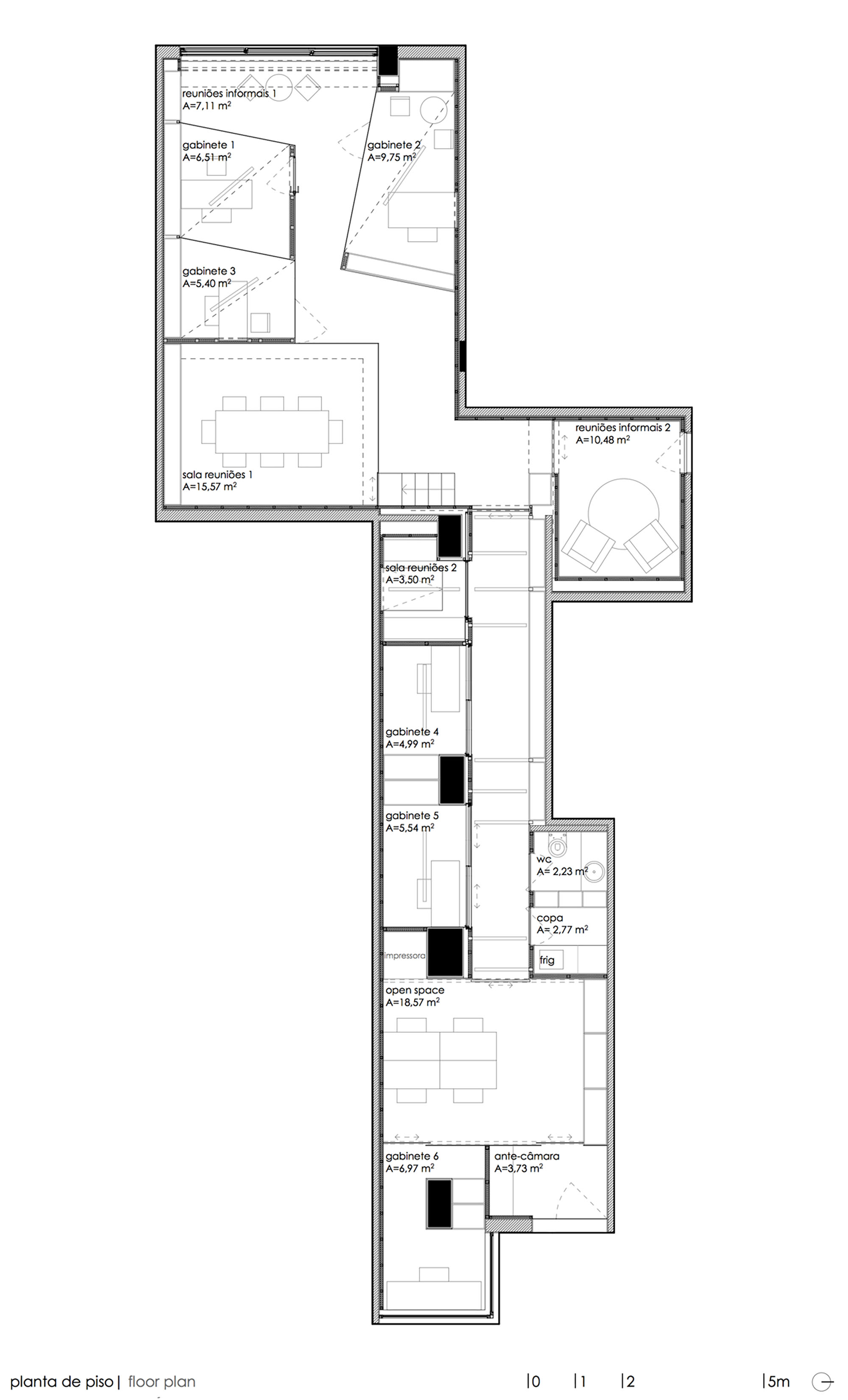
O escritório é materializado a partir da transformação de dois espaços comerciais independentes num único fisicamente ligado. Aparentemente de forma contranatura, o espaço unificado resultante é redividido em três com identidades distintas. Dois espaços diferentes de trabalhos nos extremos e um túnel de transição que regula a relação hierárquica e funcional entre eles.

Para além dos aspectos funcionais essenciais neste tipo de intervenção, a proposta identifica, interpreta e integra os elementos físicos pré-existentes, como os pilares de grandes dimensões que sustentam o edifício; o patamar maciço a uma cota mais elevada; e a escassa luz natural devido à profundidade dos espaços.

Os armários regularizam o espaço integrando os pilares. O patamar é assumido como o lugar mais importante na hierarquia espacial. A luz natural é reconduzida e estendida para o interior através de elementos envidraçados e da introdução de volumes manipulados formalmente, sendo ainda complementada com luz artificial que se transforma em muito mais do que uma simples necessidade.

A cor branca transmite contemporaneidade e luminosidade. A madeira e a cor castanha requinte e conforto. A cor amarela uma atitude de irreverência.

Location: Lisbon, Portugal
Design team: Rita Cantisano Diz, Lucas Cantisano Diz, Miguel de Gouveia André
Year: 2016
Area: 157,39 m2
Photographs: WAATAA PHOTOGRAPHY!

Destaques

Archdaily
Archello

Location: Lisbon, Portugal
Design team: Rita Cantisano Diz, Lucas Cantisano Diz, Miguel de Gouveia André
Year: 2016
Area: 157,39 m2
Photographs: WAATAA PHOTOGRAPHY!

Destaques

Archdaily
Archello